Book a valuation
For Sale
For Let
Selling
Buying
Landlords
Tenants
Blog
About us

Whitebarn Road, Llanishen

£345,000
3   1   2
Extended Mid Terraced Freehold Property
Three Double Bedrooms
Large Kitchen/Diner
Open Plan Family Living
Sitting Room
Utility Room
Lounge
Family Bathroom
Landscaped Garden
Off Road Parking
Keyboard shortcuts
f : toggle fullscreen
left-key: previous photo
right-key: next photo

Property Summary


Vastly improved and beautifully presented, this attractive mid terraced home on the ever popular Whitebarn Road in Llanishen offers exceptional space and versatility, making it an ideal choice for a growing family.

Entered via a welcoming hallway, the property opens into a spacious yet cozy lounge which flows seamlessly into an impressive extended kitchen and dining area. This superb open plan space forms the heart of the home, perfect for modern family living and entertaining. Bi fold doors lead directly out to a fantastic landscaped rear garden, featuring a generous lawn area ideal for children, along with a stylish decked seating space and a covered area designed for year round entertaining. There is a fantastic spacious shed complete with power - ideal as a home office/gym/hobby room. 

Further enhancing the ground floor is a useful utility room with additional storage, along with a second reception room that offers flexibility as a snug, playroom or home office.

Upstairs, the property boasts three well proportioned double bedrooms and a contemporary family bathroom, all presented to a high standard.

To the front, there is a neat and low maintenance frontage with a paved pathway and a graveled driveway providing off road parking for two vehicles.   

Perfectly positioned, the property is within easy reach of a wide range of local amenities, popular eateries and pubs, as well as well regarded schools and the vibrant Llanishen Village. This is a superb opportunity to acquire a stylish and spacious home in a highly sought after location.

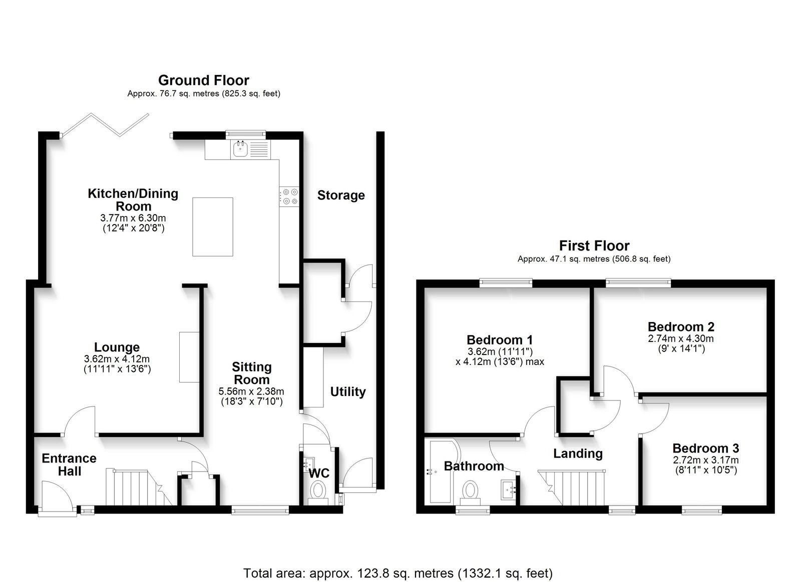
Floorplan
Rooms
EPC
Map
Keyboard shortcuts
f : toggle fullscreen
left-key: previous photo
right-key: next photo