Book a valuation
For Sale
For Let
Selling
Buying
Landlords
Tenants
Blog
About us

Deri Road, Penylan

£495,000
4   2   2
Traditional End Terraced Property
Four Bedrooms
Three Reception Rooms
Two Bathrooms ( one being a Shower Room)
Front Forecourt
Enclosed Rear Garden
Lane Access
Close to Amenities
Close to Fantastic Local Parks
Easy Access to City Centre
Keyboard shortcuts
f : toggle fullscreen
left-key: previous photo
right-key: next photo

Property Summary

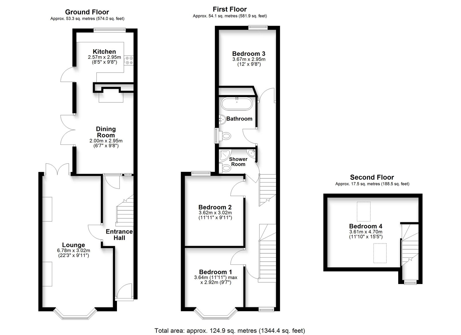
Offering impressive space, character and versatility, this beautifully presented family home occupies a prime position on the ever-desirable Deri Road in Penylan. Thoughtfully enhanced over time, the property successfully blends charming period features with stylish modern updates, creating a home that is both elegant and practical for contemporary family living. From the moment you step inside, the property offers a welcoming sense of warmth and character, with original tiled flooring in the entrance hall and feature fireplaces providing a nod to its heritage, complemented by tasteful neutral décor throughout. The ground floor offers superb living and entertaining space, comprising a traditional entrance hall leading to a spacious and light-filled lounge/dining room, perfect for both relaxing and hosting. A separate breakfast room provides an additional social hub and flows through to a well-appointed, fully fitted kitchen designed with both functionality and style in mind. Upstairs, the home continues to impress with three generous double bedrooms, all offering comfortable and versatile accommodation. In addition, a loft room, completed to regulations, provides excellent additional space ideal as a fourth bedroom, home office or hobby room. The property is served by both a contemporary shower room and a family bathroom, offering flexibility for busy family life. The home has benefited from significant investment in recent years, including a rewiring programme within the last eight years, installation of a damp proof course, and replacement gas central heating boiler approximately seven years ago. Externally, the enclosed rear garden has been designed to create a private and relaxing outdoor retreat, ideal for family gatherings and summer entertaining. Perfectly positioned for lifestyle convenience, Deri Road is just a short stroll from the vibrant amenities of Wellfield Road, beautiful parkland at Waterloo Gardens and Mill Gardens, and excellent recreational facilities. The property also enjoys excellent transport links to Cardiff City Centre along with easy access to the A48 and M4 for commuters. The home sits within highly regarded school catchments including Marlborough Road Primary School and Cardiff High School, subject to the usual admissions criteria, further enhancing its appeal as a long-term family residence.

Floorplan
Rooms
EPC
Map
Keyboard shortcuts
f : toggle fullscreen
left-key: previous photo
right-key: next photo