Book a valuation
For Sale
For Let
Selling
Buying
Landlords
Tenants
Blog
About us

Llanedeyrn Road, Penylan

£625,000
5   3   3
Mid Terraced Home of Character
Five Double Bedrooms
Three Bathrooms
Living Room
Sitting/Dining Room
Kitchen with Breakfast Area
Utility Area
Ground Floor Cloakroom
Master En-Suite
Family Bathroom
Keyboard shortcuts
f : toggle fullscreen
left-key: previous photo
right-key: next photo

Property Summary

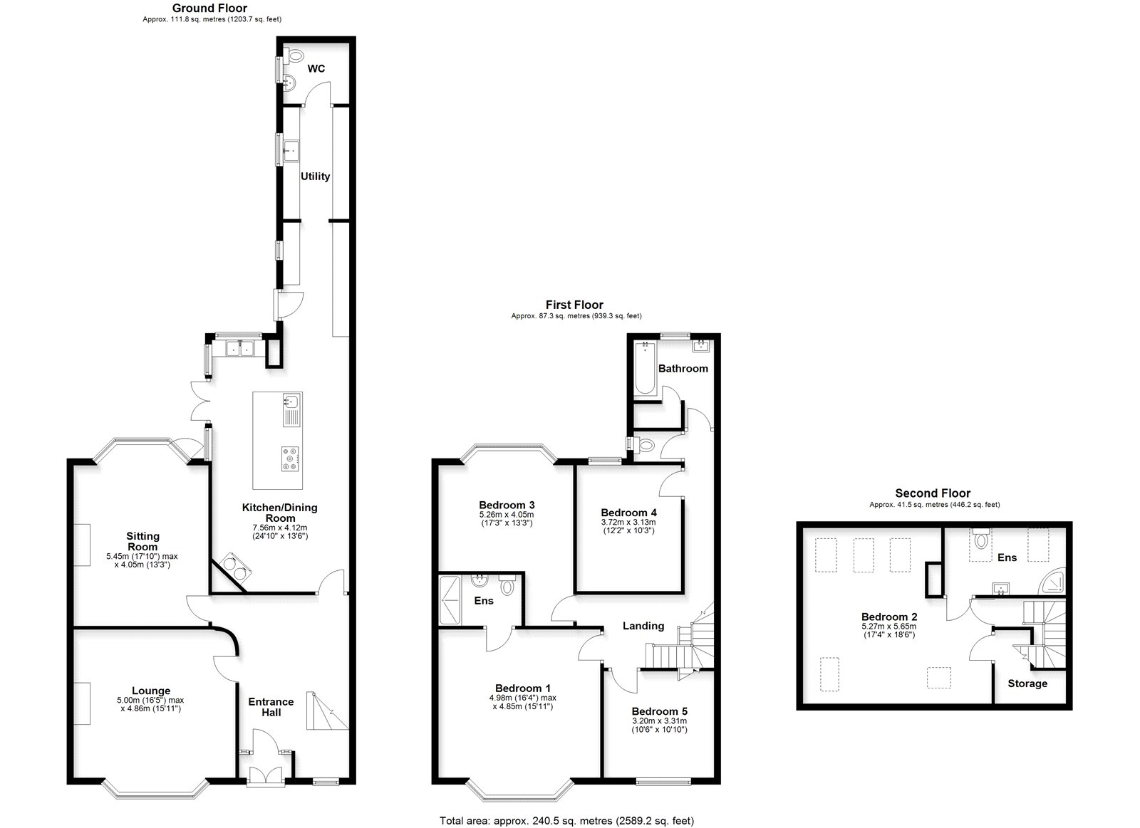
Built in 1926, this outstanding and deceptively spacious period property has been lovingly maintained and thoughtfully improved by the same family for over forty years. Bursting with character and charm, it offers beautifully proportioned accommodation throughout. A welcoming entrance hall features the original staircase balustrade and stunning herringbone woodblock flooring. The front living room enjoys a large bay window, an elegant fireplace, and a delightful original detail — the retained servant bells. The second reception room, currently used as a sitting room, sits to the rear with further woodblock flooring, , and access out to the lovely rear garden. The extended kitchen is a true highlight, providing extensive storage and a wonderful blend of traditional and modern style. Features include granite work surfaces, a Belfast sink within the utility area, and Jerusalem limestone tiled flooring. The kitchen is home to a classic Aga stove (which also provides hot water for the property), as well as a built-in Stoves double oven, gas hob set on the island, and an American Range Master fridge freezer with plumbing. There are electric plinth heaters, and ample space for family dining and entertaining. A stunning cloakroom with WC, vanity storage, and a window completes the ground floor.To the first floor, the spacious main bedroom features a bay window to the front and a modern en-suite shower room. There are three further double bedrooms — two to the rear and one to the front — along with a generous family bathroom. The second floor provides a large fifth bedroom (currently used as a hobby room) with a stylish contemporary en-suite shower room. Outside, the front garden is beautifully presented with steps leading up to the entrance. The rear garden enjoys established planting, a patio seating area, and lane access, along with a brick-built shed and garage access.

The garden has been thoughtfully designed and is far from a random mix of greenery — there is real structure and purpose behind its layout. The trees are predominantly fruit trees, including several varieties of eating and cooking apples, pears, plums, figs, olives, and apricots. Blackberries and loganberries also thrive here, providing seasonal colour and produce. In addition, flowering shrubs and plants add vibrant splashes of colour throughout spring and summer, creating a beautiful and inviting outdoor space.

The property is within the catchment area for Cardiff High School; however, admission is subject to the local authority’s criteria and availability, and purchasers are advised to make their own enquiries with Cardiff Council. A truly exceptional family home filled with charm, space, and history — early viewing is highly recommended.

Anti-Money Laundering Regulations

In accordance with the Money Laundering Regulations 2017, we are legally obliged to carry out anti-money laundering checks on all buyers and sellers involved in a property transaction. While we remain responsible for ensuring that these checks and any ongoing monitoring are completed correctly, the initial verification is undertaken on our behalf by Credas. Credas are a digital identity verification provider who are certified against the UK Government's Digital Identity and Attributes Trust Framework. Credas will contact you once you have formally instructed us to act on your sale, or once an offer has been accepted on a property you intend to purchase.
The fee for these checks is £60 (which includes VAT). This charge covers the cost of accessing relevant information, together with any necessary manual reviews and ongoing monitoring. Payment must be made directly to Credas in advance of us marketing your property (for sellers) or issuing a memorandum of sale (for buyers). This fee is non-refundable. We receive a portion of the fee from Credas as remuneration for our involvement in arranging and administering these checks.



Rooms
Map
Keyboard shortcuts
f : toggle fullscreen
left-key: previous photo
right-key: next photo